Thor Spain Office
ARCHITECTS
BarrioBohrer, Estudio Batuta
MANUFACTURERS
AutoDesk, FAMO, Kartell, Adobe, Cinema4D, Granilouro, Pedro Ros, Talleres Oñate, Trimble
AREA
370 m²
YEAR
2020
LOCATION
Madrid, Spain
CATEGORY
Renovation, Offices Interiors, Historic Preservation
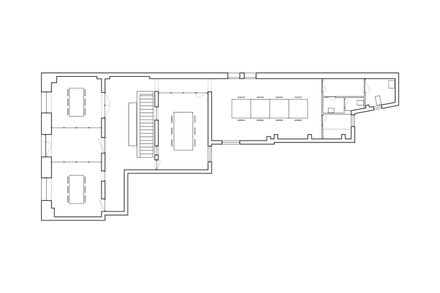
This commission consisted on the re-conversion of a former electricity supply premise, located on the ground floor of a 1900 building in the center of Madrid, into offices for a new and technological real estate developer.
The required program ends up adapting to the different spaces existing between the massive structural walls.In order to shorten the execution times of the works, the different rooms are divided with metalwork elements that were commissioned at the beginning of the project.
Its glass construction allows maintaining the spatial sequence so characteristic of the structural system of that time.
he scratched treatment of the walls avoided the long and expensive process of repairing and smoothing them, in addition to enhancing the verticality of its high ceilings and providing a lot of character.
The combination of stainless steel, granite and the rough finish of the walls unite the company’s innovative philosophy with the traditional and historical character of Madrid’s old town.

















