
Pesca Restaurant
ARCHITECTS
Lado Arquitectura E Design
PROJECT TEAM
Lado Arquitectura E Design
MANUFACTURERS
DCW EDITIONS, Gervasoni, Simas, THPG, Viúva Lamego, Hatco, Nova Color
PHOTOGRAPHS
Francisco Nogueira
YEAR
2020
LOCATION
Lisbon, Portugal
CATEGORY
Restaurant
Text description provided by architect.
Considered among the best in the world, Portuguese fish is the focus of the bold new restaurant Pesca.
Conceived by chef Diogo Noronha, taking a fresh approach to traditional Portuguese ingredients and highlighting the wealth of Atlantic food.
The restaurant occupies two floors of a nineteenth-century building in Lisbon’s fashionable district of Príncipe Real.Lado was commissioned to fully refurbish the space to accommodate 50 diners, in a contemporary yet intimate interior.
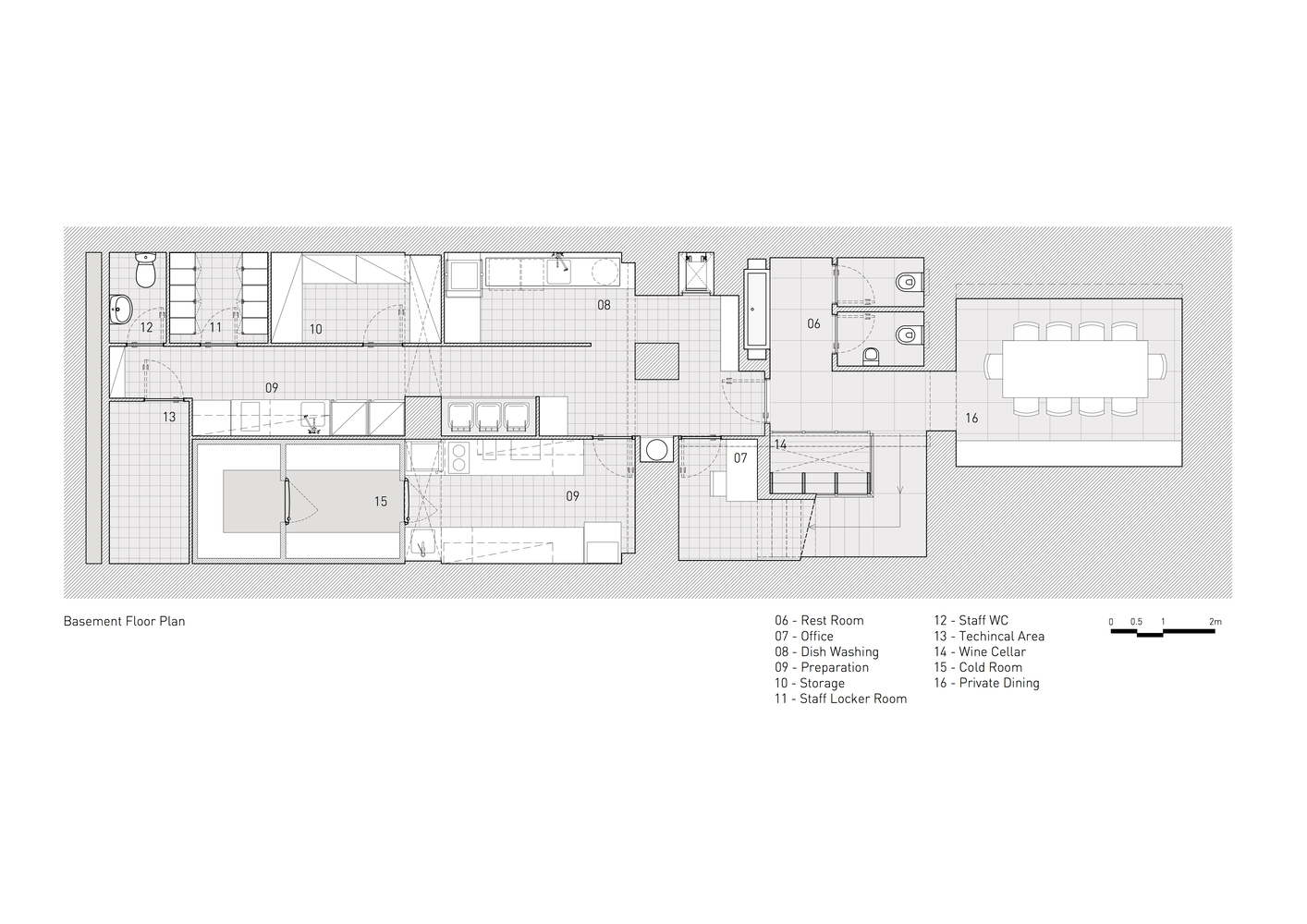
The first floor houses the bar, the kitchen, through which the customers must pass, and the dining room.The basement floor houses a private dining room, toilets, wine cellar, and all technical areas.
The project’s main goal was to harmonize the indoor and outdoor areas, creating an elegant continuity throughout the spaces.
To achieve this, a combination of toned-down materials was used throughout the space, from the floor with its terrazzo mosaics through to the furniture, made mostly from recycled wood and old pieces of furniture.
Another challenge was to ensure that the outdoor space could be used throughout the year. This was accomplished by the installation of a bioclimatic terrace adjoining the indoor dining room.
With its walls covered in Portuguese traditional tiles, the restaurant has a subdued atmosphere, with no lack of attention to detail. Quite the contrary, everything was meticulously planned: from the choice of chairs to the lighthouse-inspired lamps.
The architecture and interior design schemes are a mix a of minimalist details combined with traditional materials, creating cosy atmosphere, designed to make diners feel at ease.






















