
Nionohama Apartment House Renovation
ARCHITECTS
ALTS Design Office
CREATIVE, DESIGN & ART DIRECTOR
Sumiou Mizumoto
MANUFACTURERS
AEG
PHOTOGRAPHS
Fuji-Shokai / Masahiko Nishida
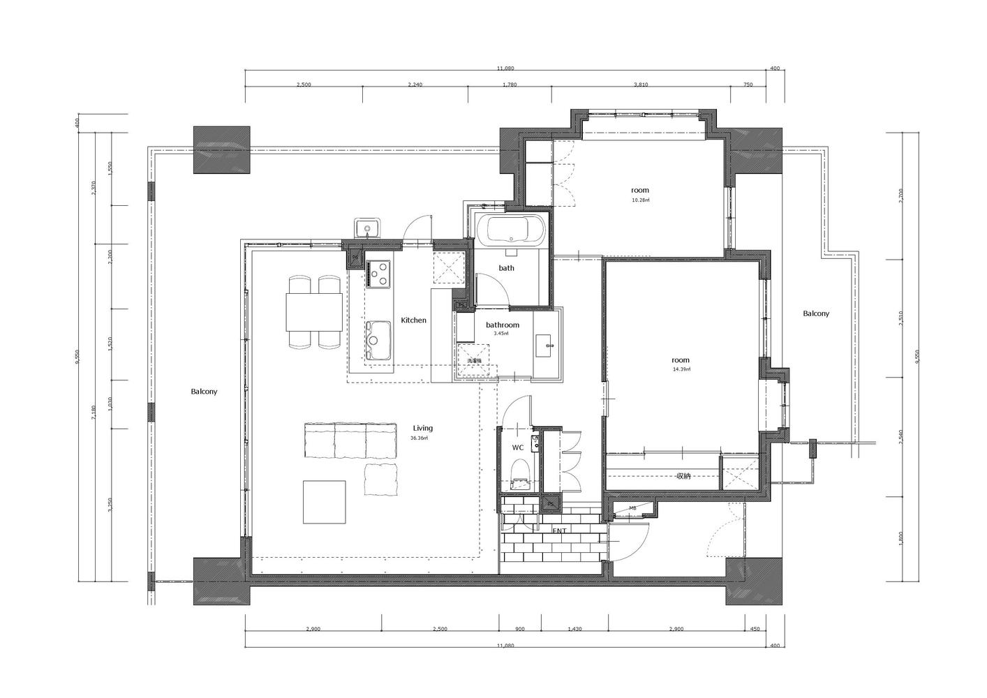
AREA
84 m²
YEAR
2017
LOCATION
Otsu, Japan
CATEGORY
Renovation, Apartment Interiors
This plan is for renovating a room in a mansion with the view of the lake Biwa. The husband is keen on furniture and the wife loves plants. They live together with two cats.
They have a newborn baby now. At this opportunity to have a new member in the family, they want to move to a new place.
This is the reason why this project started. The plan was contemplated based on the concept "Cat, Furniture, and Plants." We contemplated a space in which the living spaces of the cats and people are connected using furniture to allow them to live together comfortably.
Considering the space from the cat's point of view, we provided the furniture against the wall, so that the traffic lines of the cats could be provided between the pieces of furniture. Then, the storage space used by the people and the houseplants were allocated in the space thud designed.
By this, we designed the room as a space where both the cats and humans find where to stay.
With some places where the eye levels of the cats and humans are equal, so that they can feel the presences of each other.
While the people live on the floor, the cats live on the extra spaces, like the upper spaces unreachable for the people, and the spaces close to the floor surfaces.
The storage furniture are designed to be arranged such that furniture and home electrical appliance on floor can be positioned without wasting the space.
It was improved to be a wonderful space for humans and cats by designing it to maximize the utilization of the unused space and taking the two factors, the storage furniture and the cat walk into consideration.



















