
Alma Creative Club
ALMA CREATIVE CLUB
Tham & Videgård Arkitekter: Tham & Videgård
ARCHITECTS
Tham & Videgård Arkitekter: Tham & Videgård
CLIENT TEAM
Fredrik Carlström, Creative director, Anna Behring Lundh, VD
COLLABORATORS
Tham & Videgård - Oskar Lundahl (project architect), Linda Högberg Andersson, Samuel Vilson
MANUFACTURERS
Vitra, Wastberg
PHOTOGRAPHS
Åke E:son Lindman
AREA
2170 m²
YEAR
2017
LOCATION
Östermalm, Sweden
CATEGORY
Office Buildings, Refurbishment
With Alma the client wanted to create a members’ club and co-working space aiming to unite Sweden’s creative crowd.
It is housed in the former premises of the celebrated Beckman’s design college at the heart of Stockholm’s economic and cultural center.
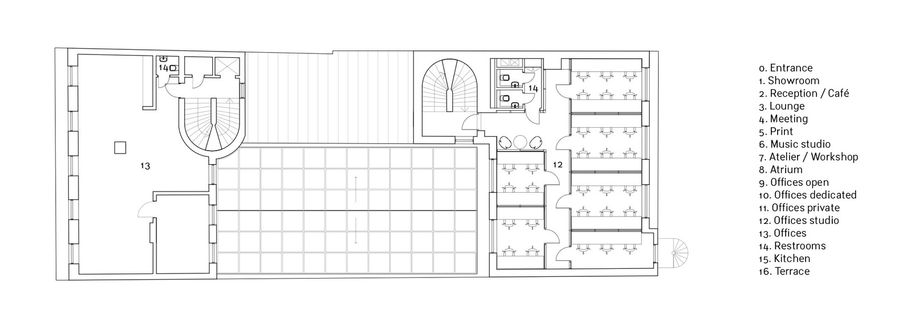
Tham & Videgård was asked to refurbish the entire building, dating from the early 1900s and originally built for a sewing machine factory consisting of two five level buildings around a covered atrium courtyard.
Given the extensive construction work needed in combination with a short time frame, a challenge was to find a way to achieve the high quality architectural environment the clients wished for with relatively small means.
As a response, Tham & Videgård proposed three elements that together form the base providing continuity throughout the entire space: a colored parquet pattern floor made of sawn ceramic tiles.
A painted frame work structure to create partitions made out of standard wooden profiles, and a new circular pendant light to be used as a floating ceiling eliminating the need for a suspended ceiling.
The brief included a series of different working environments, from open social lounge spaces and communal work tables, to more secluded glass cubicles and private office rooms dedicated for one person or a team of co-workers.
Alongside the office spaces the five-storey venue should also host events, workshops and exhibitions as well as conference rooms for hire.
The main entrance doubles as a design shop and café and the spacious atrium functions both as a member’s restaurant run by two of Sweden’s best chefs, and for special events including a curated contemporary art program.
In addition to the overall interior design, Tham & Videgård also designed the Alma lamp, produced by Swedish lighting company Wästberg (wastberg.com), and a series of solid ash tables.
Storage units and benches that are used both for the atrium restaurant and the communal work spaces.
Additional furnishings were coordinated by Almas creative director Fredrik Carlström (Austere), with custom designs and objects by Moa Ott, Sara Söderberg.
Christina Nordlind Hejdenberg, Rikard Palmquist och Kasper Friis Kjeldgaard, Erik Järkil as well as several contemporary Swedish and international artists.
The Alma project won the Golden Chair Award for Best Interior of the Year 2017 by the Swedish Association of Architects.
























