Yugok Dong Housing Market
YUGOK DONG HOUSING MARKET
YEAR
2017
LOCATION
South Korea
CATEGORY
Apartments
This is a project looking for another architectural alternative to the housing market located in the innovative cities that are currently being developed.
The building site that is located in the Innovation City is located in the T intersection.
The location of shopping mall is good, but for the location of the house is unsecure of the privacy.To solve this problem, we use the cube block as a screen device on the residential sector.
As a commercial building, at night, it had an unique lighting feeling and gaining awareness became an advantage.Also, it’s located about 15m lower side of the road and.
The opposite side has an advantage of the view of urban landscapes and mountains. Considering this surroundings, at the 1st floor was external court.
And the entire floor was glass mass to give an enjoyment to the users. But, the biggest problem is that if the street block is form as a commercial type house only.
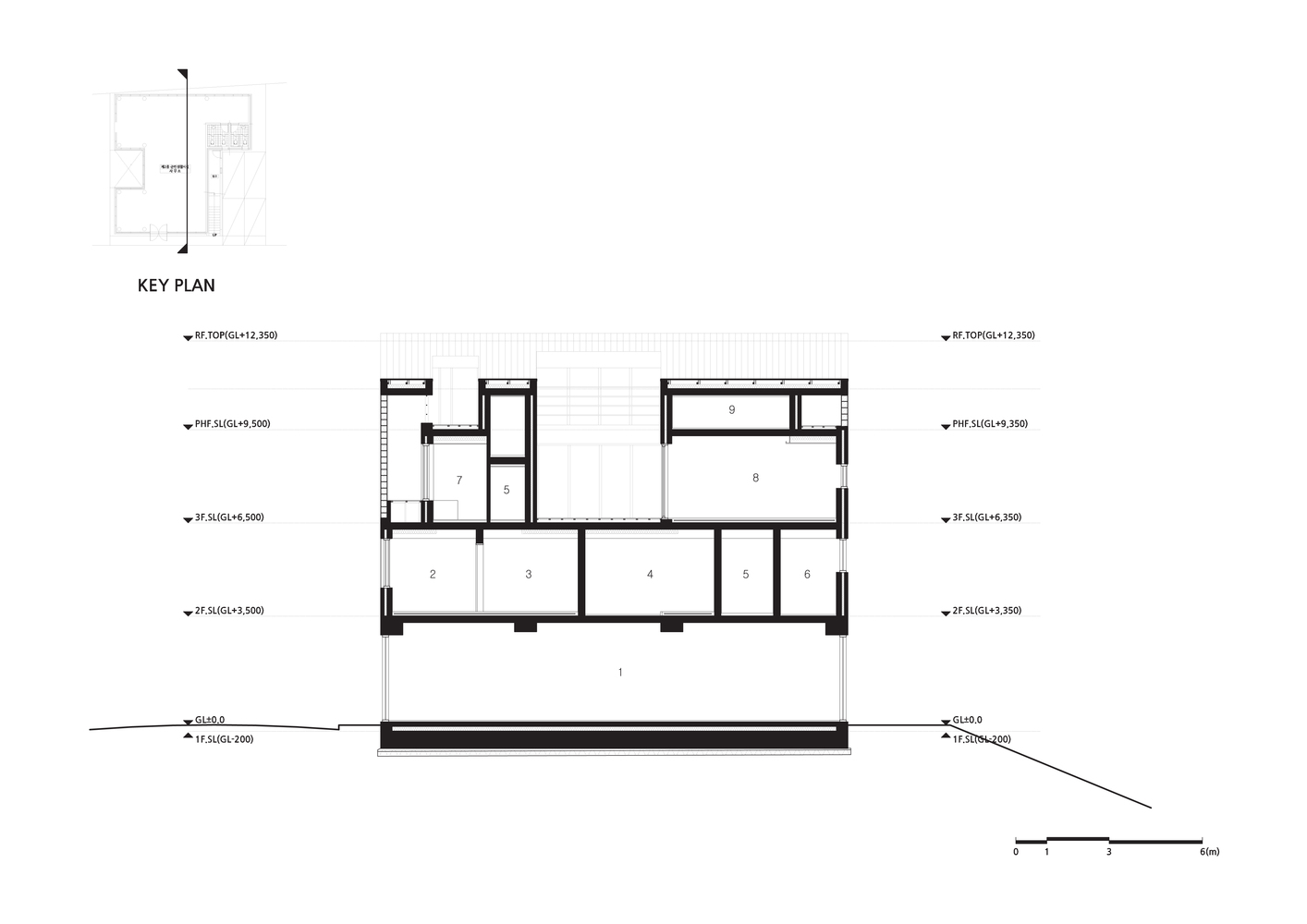
Then the 2nd floor and 3rd floor has a problem of lighting. A house should to be bright and naturally ventilated to maintain comfort.
To secure the privacy of 1st to 3rd floor to the south, we formed a cube block as a screen device and on 3rd floor, we made sky garden in external court for the lighting and natural ventilation.
Especially, on 3rd floor, between 2 external court can be a living room, dining room, or home bar and by placing a wall in kitchen, it can be an independent space or one space.
Also, in this multi-purpose space, we installed a folding door around the external court to make as a another one space.
The kitchen is the center space when the owner of third floor generation comes.The kitchen communicates with the sky garden, multi-purpose space, and living room.
The attic separates the 2 areas into 2 spaces and make as a connecting passages.This connecting passage connects the attic with the bridge between the external court and the external deck and connects with the sky garden too.
Through the center of the sky garden, various spatial program can be form and hopefully there will be new ways of communicating amongst family members too.






























