
Visconde Setúbal House
VISCONDE SETÚBAL HOUSE
ARCHITECTS
Alessandro Pepe Arquitecto
CARPENTRY
António Loureiro, Armênio Maia
COLLABORATORS
Pablo Hernandez Esteban, João Ramos, Rita Gomes, Claudia Barsan, Kátia Sousa
MANUFACTURERS
CIN, Cinca, Efapel, Ofa, Valadares, Equation, Sanitana
CONSTRUCTION
José Sousa
REAL ESTATE COMPANY
Azu
PHOTOGRAPHS
Attilio Fiumarella
AREA
360 m²
YEAR
2016
LOCATION
Porto, Portugal
CATEGORY
Renovation, Houses Interiors
This is a student house located in the center of Porto city. The experience of construction workers permitted the development of good level details of construction, even using the simplest materials.
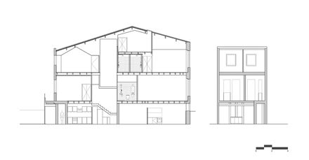
The building has a total of four floors: the basement, the ground floor, the first floor and the attic. In the basement is where the community areas are: two kitchens, two bathrooms, a storage space and a technical area.
Within the main kitchen, there is an informal living area that - with the help of the backyard garden - offers a continuous space, for social student gatherings.
This hybrid kitchen is the main space of the house.Since the space in which it was inserted couldn't offer condition, for a clear separation between kitchen and living space and since we needed to integrate a secondary wooden structure to the existing concrete one, belonging to the 1950s refurbishment of the house, we decided to maintain the original 1900 structure and designed,the kitchen furniture to be part of the house structure, using same wood (Portuguese pine) and integrating it in the walls.
This mixture of elements has prevailed since the start of the design. The main entrance is from the Rua Visconde Setúbal. And at the end of the staircase is the dorm room hall.
The big mirror on this staircase amplifies the perception of the space and creates some visual relation with the existing skylight frame.
In this residence there are a total of eight rooms, six of them are simple, and two are double rooms.
The room windows are doubled. We followed the idea to rehabilitate the 1920s wooden elements, even if they didn't perform as present-day frames.
Therefore we created a secondary wooden frame with integrated shutter panels.
The result is an excellent performance with the same expense of a standard PVC window.














































