Acute Intervention
ACUTE INTERVENTION
ARCHITECTS
David Stanley Architects + Romy Grabosch
PHOTOGRAPHS
Juliet Murphy, Adelina Iliev Photography
AREA
80 m²
YEAR
2017
LOCATION
Greater London, United Kingdom
CATEGORY
Residential Architecture
The metamorphosis strategy adopted was to extend out to create a flexible family room.
And to dig down to create an independent sunken office and fully functional granny annexe – the garden being the focus.
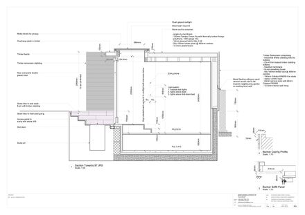
Views to and from the garden are framed through panes of (almost) frameless glass.
A blackened timber cladding we liken to a snug fitting Balmoral bonnet sits atop this ephemeral border.
Which makes a striking contrast to the beech timber panels cladding the walls and ceiling of the Lounge.
From the comfort of the sofa, the striations of the laminated timber panels direct the eye up towards a small roof light that catches the golden hue of the late afternoon sun.
These same beech panels are further employed to articulate the various activity spaces throughout the flat.
At the heart of the family room is the undulating bespoke Kitchen island unit.
The reading ‘nook’; the utility shelf; the concealed fire door; the cubbyholes.
Constructed of oak veneered boards and floating on a sea of concrete this piece of landscaped furniture was designed to encourage the interaction of everyday family life.
At the end of the day it is the views framed by this architecture that are most remarkable and eye catching – from the majestic tree ferns in the ‘Zen’ garden to the Chinese Rosebud and Carpinous Domes in the blackened timber planters.
And when the last rays of the setting sun hit the Corten BBQ backdrop with a reddish-orange glow… could that be a hint?








































