MANUFACTURERS
Duco, Keukenmaxx, Storax
PHOTOGRAPHS
Mirko Merchiori
AREA
269 m²
YEAR
2017
LOCATION
Overveen, The Netherlands
CATEGORY
House
Renovation and extension of a stately row house in Overveen, The Netherlands. The house is located in a dune area and therefore the ground level is higher at the front than at the rear.
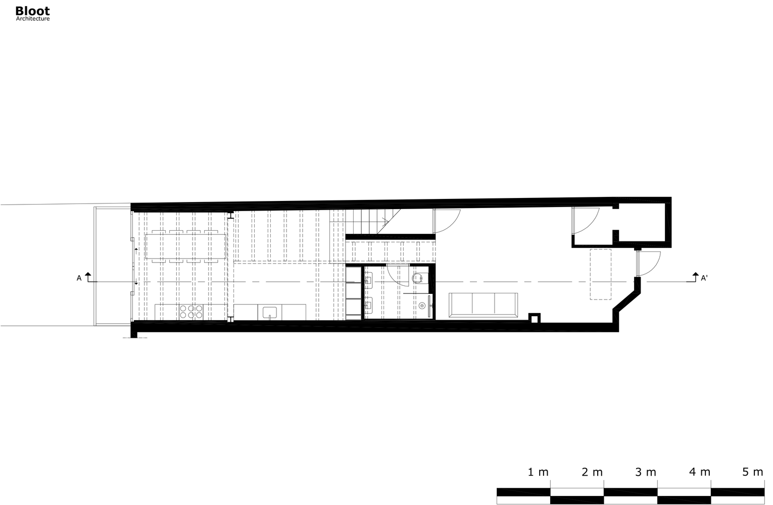
The inside of the house was already taken care of in the 70s and stripped of all period features. The ground floor serves as a living area and was a large narrow space.
A spiral staircase with a balustrade made of marine rope led to the basement that consisted of a series of small rooms including a small kitchen. The first and second floors consist of bedrooms and a family bathroom.
The basement has now been extended so that the existing kitchen has become larger and has now become a real family kitchen with an open view of the back garden.
A floating veranda connected to the family kitchen strengthens this relationship. On the floating veranda you can sit with a cup of coffee and dangle your legs. The open plan living room is too large for its purpose due to the new kitchen.
The basement has a low ceiling and is dark, so creating an open connection between the kitchen and the living room was a logical step to take. The desire to have a roof terrace on the extension led to a connection between the floor of the living room and the roof of the extension.
To open up this area and make as light and airy as possible, everything between kitchen and living room is made of glass .
The glass is supported by large Douglas beams that are also continued into the extension. The staircase that runs along a continuous wall between the basement.
The living room and the bedrooms creates a visually connecting element between the different spaces and also ensures that the long living room is broken up in a front and back.
The rest of the basement is open, with underfloor heating and now functions as a play area for the children or as guest room.





















