
Barão De Pirapitingui Apartment
BARÃO DE PIRAPITINGUI APARTMENT
COLLABORATOR
Luiza Orsini
PHOTOGRAPHS
Raul Fonseca
AREA
300 m²
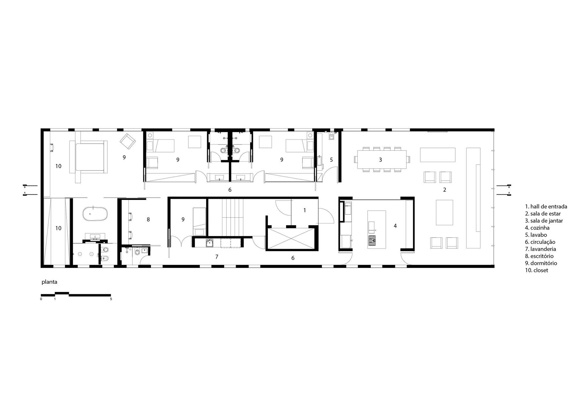
The apartment is located at a Botti Rubinʼs building.
With brutalist architecture, the construction is a typical example of the paulista architectural school production from mid 1960ʼs.
The main concepts of the intervention in this 300 sqm residence were: the wide use of raw concrete, restituting this essential element of the architecture of the building; and the spatial rearrangement in order to make use of the open floor space from the original project.
Thus, new exposed concrete pieces, like partition, tabletops and sinks, were inserted and the previous concrete of the slabs and beams, which have been coated, were recovered.
In addition, by reconfiguring the partition walls, a fluid circulation was created, which allowed to define clearly the bedrooms volume, the kitchen box and the social area open space.
The raw concrete box, in which the kitchen is located, was placed in the middle of the open living room and can be closed by translucent glass doors.
The bedrooms configure a nucleus, finished with colorful lacquer panels, granting luminosity and color to the whole ambient.
A monolithic floor finishing was adopted in order to amplify the sensation of a continuous space, the limits of which were defined by using sliding doors that can be transparent or shaded depending on the function of each area.






























