
Bulka Cafe And Bakery
BULKA CAFE AND BAKERY
Designed by Crosby Studios architects Bulka Cafe and Bakery is located in the Gorky Park in Moscow in the middle of the extensive gardens along the Moskva River. Thus the greenery theme of the park is projected into the interior design through various details letting a bit of sunny summer into short overcast days and long winter nights of Moscow.
The main task was to create the most baking restaurant with the least baking interiors avoiding by implication all the associations with a traditional bakery like salvaged wood, vintage furniture, confiture jars, etc., and the architects came up with the idea of a summer house in the country but built for a young modern couple.
The wide open space is divided into zones by industrial looking shelvings decorated with potted plants and fresh vegetables waiting to be picked up by the chef for cooking. Regular water pipes and fixtures just like one would use for outdoors water outlet in the country form the three faucets along the single wide sink made of tin ventilation channel.
The lighting fixture spreading 10 by 10 meters all around the venue is made of reading-lamps and pending potted plants repeating the pattern set by the shelvings.
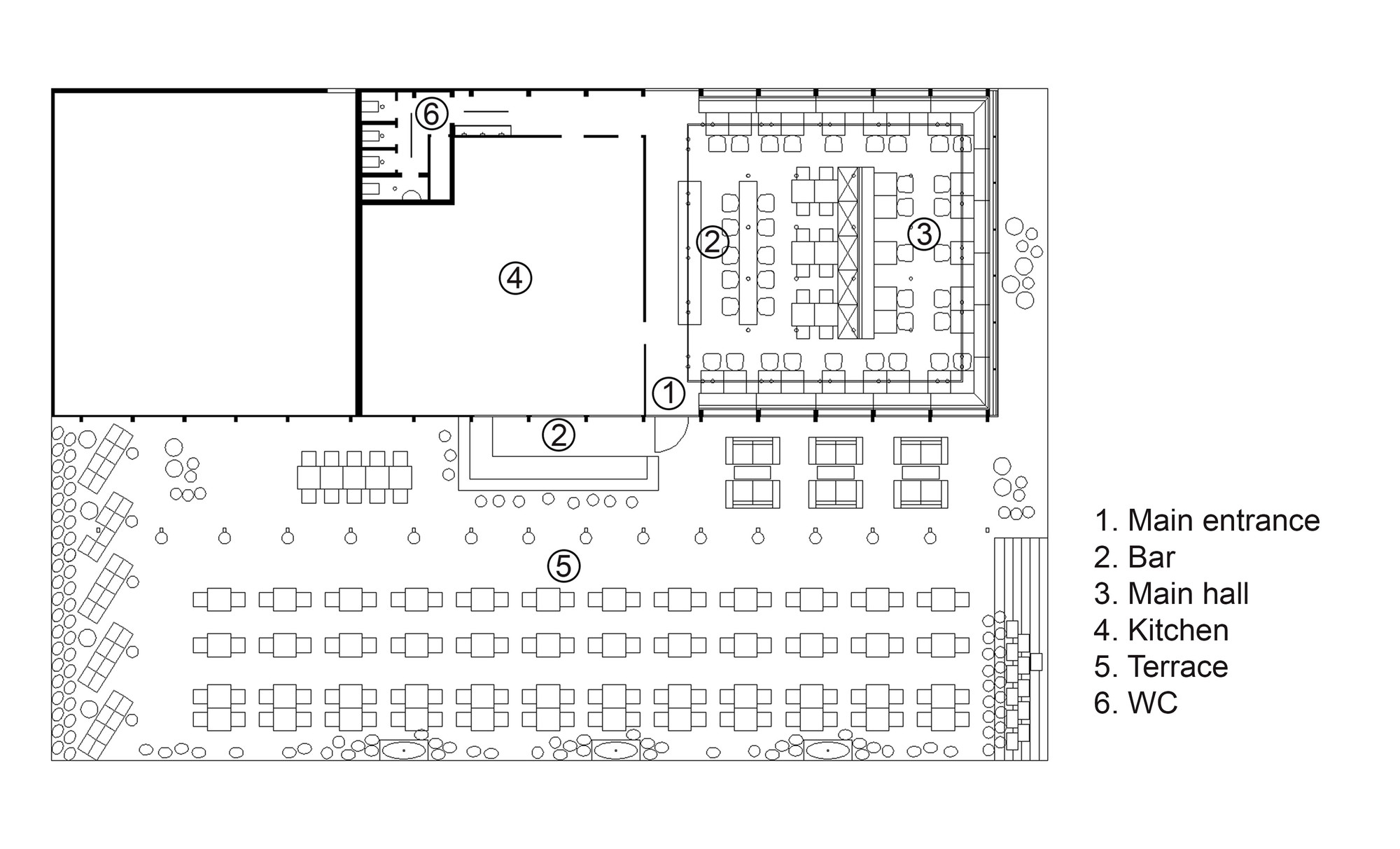
The floor plan is very simple and symmetrical and it can be easily transformed to meet various format requirements being either formal or casual.
The bench stretching along the perimeter of the venue is custom made at Crosby Studios Workshop and painted jade colour just like the bar stools and the overhead lights.
The tables just like the wooden floor are painted light grey. Tableware and cutlery are stored in the open bar stand among viennoiserie and again potted plants.
The back wall, the only one without windows, is painted in graphic dazzling pattern catching attention from outside through the other three glass walls of the pavilion.
Last but not least to mention is that the specifics of the location being a public park suggested the works are held during the night and it took only one month to fulfill the project.




















