
Renovation Of An Industrial Building Into A Single Family House
RENOVATION OF AN INDUSTRIAL BUILDING INTO A SINGLE FAMILY HOUSE
ARCHITECTS
Guim Costa Calsamiglia
TECHNICAL ARCHITECT
Pere Vilaginés Serra
CONSTRUCTION
Construcciones Torres SCP
INTERIORS
Oriol Vidal Besa
YEAR
2012
LOCATION
Tàrrega, Spain
CATEGORY
Houses, Refurbishment
This is a full renovation of a building between party walls in the town of Tarrega, currently comprised of a warehouse to be renovated into a house.The original building occupies the entire site on 13 Ardécol Street, with a rectangular plan 9.4 x 17.5 m2, and an area of 164.95 m2.
The main access is from the street, on the east side of the lot which is the only one that has openings to the outside.The building is simple, since it is an old factory where what prevailed was the space, and consists of four perimeter walls of bricks on which rest the wooden trusses that support the roof with a wooden structure and Arabic tile finish.
Inside, the building features a large open space, without any interior partitions, about 7m high, reaching almost 9 meters at the ridge of the roof. The ground has an interior slope more or less constant, and there is a level difference of about 20cm on the opposite side of the entrance facade, with an irregular leveling and traces of the former industrial activity.
We propose the complete renovation of the building, fixing the structure and restoring the roof. The intervention does not imply any change in the volume: everything is within the limits defined by the original building.The floor is raised, leveled and waterproofed. The roof is removed entirely trying to recover as many tiles as possible.
The trusses and beams are fixed and the sloping roof of Arab tiles is remade with a new waterproofing and insulating sheet. The interior is divided in section into three, with corrugated sheet metal and concrete slabs. Openings on the facade to the street are adapted the new distribution
Reducing the large truck access, moving the pedestrian access and expanding existing windows. The sections that remain are fixed, filling in cracks, regularizing openings and fixing loose pieces. In the process of defining the interior,
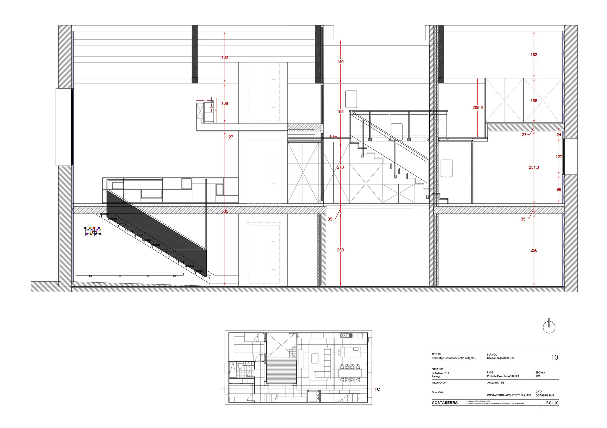
one of the biggest bets of the project is to have a yard 3.6 x 7.5 m2 which divides the depth of over 17 meters of the building, creating a large interior facade for cross ventilation and natural light across the three floors. The stairs and elevator make up the vertical core between the ground floor (access and services),
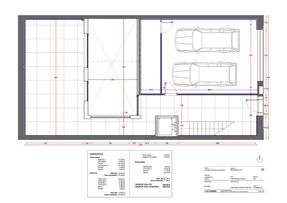
First floor, and second floor (main suite and study over the double height of the kitchen and dining area).The ground floor is designed for access and services. There is access for pedestrians and vehicles from the street.Parking communicates with a service room with the boiler, storage and other building services.
Through a door is the hall, which connects to the main door from the street.From the hall is a circulation that borders the courtyard and leads to an open room used for storage or as playroom. Several windows and balconies bring light into these units through the new courtyard. Two staircases bring us to the first floor, one interior through the hall and one exterior through the courtyard.
The first floor is designed in two areas separated by the courtyard volume. The living area is designed on the east side of the house, it is the space connecting to the interior staircase facing the street.
It is a rectangle of 8.8 x 7.5 m where the living room, kitchen and dining room converge with a single space without divisions, with cross ventilation from the main facade to the courtyard.
The circulation bordering the courtyard leads to the hall of the sleeping area, with access to two bedrooms and a shared bathroom.The exterior staircase from the courtyard leads through an eco flooring platform that enables access to this level.
The interconnecting area between day and night leads to the start of the stairs up to the second floor.This floor has two particularities, it has two levels and does not occupy the entire plan. The two levels are due to the need to allow circulation under the existing wood trusses.
This has been resolved by making a plan of arrival from the lower staircase, which distributes below the level of the trusses to the study and into the master bedroom with its own bathroom. Both spaces are at a higher level which is accessed by three extra steps.
The study occupies more than half the space of the living-dining room, creating a double height that allows light and ventilation into the project.Besides the already mentioned stairs between levels, an elevator is also designed for access with heavy shopping or for people with disabilities.

























