
American School Of Kosova
ARCHITECTS
Maden Group
LEAD ARCHITECTS
Maden Group
MANUFACTURERS
Knauf
PHOTOGRAPHS
Leonit Ibrahimi
AREA
6605.0 m2
PROJECT YEAR
2018
LOCATION
Shkabaj, Kosovo
CATEGORY
Schools
Being a kid and even a teenager is definitely a special feeling, a feeling of being without any worries. The correct location for this project is Prishtina, Kosovo and will be updated in our database in a few.
The enthusiasm for our children to have better conditions for education, where they want with desire to go to campus, has been the main motive to create a positive and energetic environment. The school now except teaching is a game, entertainment and anything else, factors that make the learning more attractive.
Multifunctional space where multipurposes are developed in one place, natural lighting in each space, variety of colors and incorporating of green in the interior are some of the components that characterize the new campus of the American School of Kosovo.
The yard is enriched with circular oases, which in some cases are green and in some cases filled with children's games, all interconnected.
Also, enriched with multipurpose amphitheater, open terrain for various sports and closed terrain. These include an area of 2670 m2 , so giving the name Campus.
The kindergarten is characterized by the central gallery, which connects all the surrounding spaces together with the internal atrium, within which grows a multi-year olive.
This tree impresses that it will be there and will be conveyed by generation and generation! .. Olive knows all the pupils, it knows which of them will be the leaders of the future !.
From time to time, it gives the impression of a grandfather who expresses love from outside. Lighting that comes from above adds artistic value to the gallery and creates space for many functions, in one word creates life.
The nursery is conceived in two separate sections with functions, based on standards of educational institutions and has a area of 1480 m2
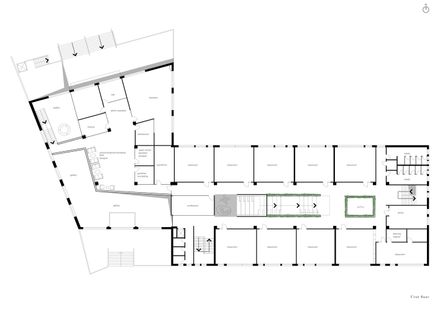
Considering the high school is dedicated to adolescents, of course is an environment with a larger area that reaches 6605 m2. The school is characterized by enlarged, horizontal and vertical elements.
Subterranean is organized with technical facilities, laboratories and has the kitchen together with the food buffet.
The ground floor, which holds the main entrance as an important element with a fairly flexible space, enables to be held various activities.
This space is filled with green and has a three-gallery auditorium, which connects the three upper floors.
The galleries and the auditorium are exposed by natural zenith lighting, which make the school function as a entirety
Each section has its own characteristic color, giving different identities to each of them. While from galleries, the play of colors is perceived as a complex.
Above all, the campus will be qualified as completed when the primary school facility and multifunctional facility are finished.























