
White Cube Bermondsey
WHITE CUBE BERMONDSEY
ARCHITECTS
Casper Mueller Kneer Architects
MANUFACTURERS
Barrisol, Kingspan Insulated Panels, Peneder, Bolichwerke, Stewart Fraser, Eutrac, The Expanded Metal Company
PHOTOGRAPHS
Paul Riddle
AREA
5440.0 sqm
YEAR
2011
LOCATION
Bermondsey, London Borough of Southwark, London SE16, United Kingdom
CATEGORY
Gallery
Conversion and extension of an existing 1970 warehouse into a contemporary art gallery complex.
More than 5440 m2 of existing warehouse space were transformed to provide several exhibition spaces each with their own character, a suite of private viewing rooms, a 60 seater auditorium, a bookshop, an archive and offices as well as facilities for art storage, assembly and documentation.
Materially, the industrial character of the building was maintained and enhanced by new additions and modifications. The structure was generally retained, but opened up and substantially modified.
A new entrance yard, brought a previously closed off space into the public realm and draws new audiences to the area. Internally the public spaces are arranged along a 60m long street-like long corridor.
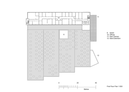
There are three principle exhibition areas which differ in dimensions, proportions and light condition: The ‘South Galleries’ provide 780m2 of column free space and act as the main display area. The ‘North Galleries’ are smaller, more experimental in character.
‘9x9x9’ is a centrally located cubic space of shape – the only space penetrating the existing building envelope and flooded with natural light. An auditorium allows the presentation of films and lectures.
The new gallery spaces were inserted as free standing volumes at the heart of the building – shells within a shell – and surrounded by ancillary spaces and service voids.
This allows the galleries to be serviced from all sides and be structurally and enviromentally self-contained, independent from the existing building.
The lighting design provides a completely even light. Some galleries combine natural and artificial light. All viewing rooms and gallery ceilings allow for varying sub divisions by temporary walls.
Industrial materials were set against the white gallery interiors. These are often untreated or self-coloured. The floors are power floated natural grey concrete.
Steel meshes are used for the public corridor and entrance areas. Doors are made from untreated mild steel or stainless steel and glass. Concrete, grey granite and steel dominate the external landscaping.














