STUDIO SPEC
YEAR
2010
LOCATION
Sydney, Australia
CATEGORY
Offices Interiors
Text description provided by architect.
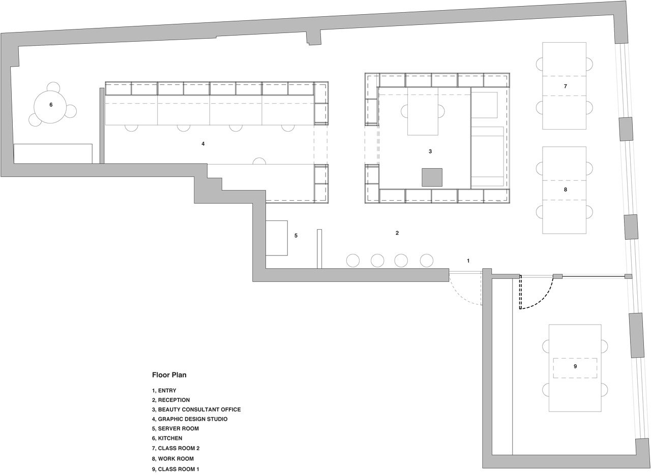
We were requested to design a space, which would be accommodating for the co-existence of businesses with very different natures - graphic designer studio, beauty consultation room, and graphic design school.
Although, restrictions such as short construction timeframe and limited budget, are becoming standard challenges we need to address now a days, on top of these, the site we were given this time was not a straight forward, rectilinear shape, but rather an irregular, difficult geometry.
When we were already challenged by quite a lot of restrictions in this project, a “bonus challenge” came our way; our client, the married couple who are also business partners, have characters and interests regarding the space they were to work in, pointing to entirely opposite directions. How can we approach this?
If we are to simplify the clients’ requests, it was probably suitable to break the site into 3 portions to respond to the required functions. It was probably also suitable to enclose the different characters and interests into the separate rooms to resolve the conflicts between personal tastes.
However by doing so, the space as a whole may become something without character in the end, with rooms of no interaction. Is it suitable, really?
Here we decided to give a go at designing the physical presence of “restrictions” and “opposite characters”. We decided to form two regular spaces, boxed in by joinery units responding to the respective scales of the married couple’s businesses – “graphic design” and “beauty consultation”. We then “inserted” these two boxes into the irregular site.
By doing so, we were able to structure the zoning into the two boxes, and a third space created between the regularity of the boxes and the irregularity of the site; the third space is designated for the graphic design school and general circulation.
Furthermore, we have identified the opposite characters of the married couple, with the contrasting tones of “black” and “white”. The third, in-between space is notionally the “grey”, which harmonizes the contrast of the boxes, whilst maintaining their individualities.
We aimed to design a space, which - rather than eliminating the characters created by difference in interests and irregularity in geometry – is accommodating for the coexistence of contrasts and irrationality. We wish that it will become a working environment, which allows for richness in characters, by structuring the ambiguity in spatial.





