Art Loft Chai Wan
ART LOFT CHAI WAN
ARCHITECTS
Mass Operations
DESIGN TEAM
Viviano Villarreal-Buerón
PHOTOGRAPHS
Jonathan Maloney
GENERAL CONTRACTOR
Hung Limited
AREA
220.0 sqm
YEAR
2014
LOCATION
Chai Wan, Hong Kong
CATEGORY
Apartment Interiors
Text description provided by architect.
In a city that commands some of the highest per sq.ft rates for mostly underwhelming properties, industrial conversions are a popular and budget friendly option for those seeking more unique spaces, with higher floor to ceilings and more generous areas.
“The Art Loft” in Chai Wan is our 2nd loft in Hong Kong and builds upon the work done on our Ap Lei Chau “Bachelor’s Loft”.
Although the two lofts find themselves in completely different parts of the city, both districts are industrial zones and both projects are driven by an intention to generate better spaces than those available in the city’s residential neighborhoods.
The owner of the Chai Wan Loft is an art collector; as such his wish was to be able to display his art and book collection while also being able to entertain guests, in a spacious and comfortable setting, with views of the city.
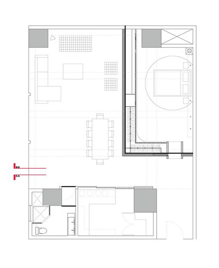
A pragmatic layout plan uses a concrete dividing wall to separate the Living and Sleeping areas, the wall is left short of the ceiling allowing for ventilation and light to be shared between the spaces while maintaining privacy.
The catering kitchen can be opened or closed by large sliding partitions that double as blackboards creating a dynamic public living area, while the Bedroom uses a curtain to hide and reveal the wardrobe, drastically changing the character of the space from Bedroom, to Walk in Closet without sacrificing space for either.
A general approach of “industrial roughness” and adhoc strategies are used to maintain the quality of the –converted- space; scraped beams and columns reveal the structural concrete, exposed piping and machinery show the sense of urgency and perhaps temporality of the occupation of the space.





















