URBAN
ARCHITECTS
Joey Ho Design
YEAR
2014
LOCATION
Hong Kong
CATEGORY
Coffee Shop, Retail, Interior Design
Text description provided by architect.
Located in an exclusive luxury mall in the heart of Hong Kong’s CBD, Central, Urban is a chic, urbane cafe offering a new “bake n take” experience.
The idea is to elevate bakery into a playful, casual and fast paced gourmet concept, and allowing customers not only a place to refuel, but to socialize with friends and colleagues, which is the true essence of urban business lifestyle.
A city is full of contrasts and contradictions.
As suggested by its name, the challenge of this project is to portray the contradictory reality of the urbanscape within the physical confines of this bakery café.
Inspired by London’s Borough Market, the café offers a wide gamut of food ranging from breakfast to lunch, teatime to even happy hours.
To complement the menu, a lively and inspiring atmosphere has to be injected into the space, yet with design elements that also reveal the dark side of an urban city.
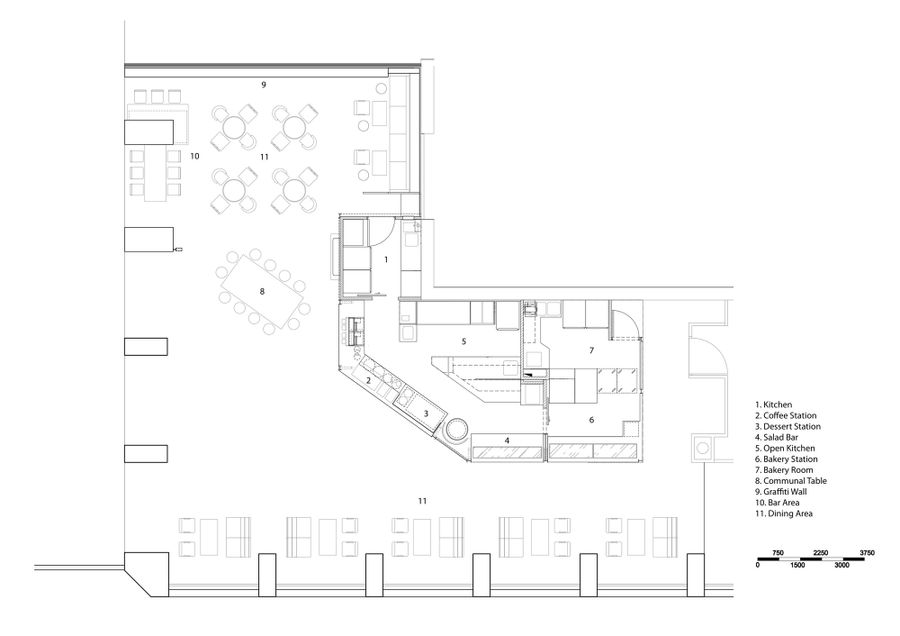
The café interior contains a collection of images that summarise the impression of an urban city.
A feature wall by celebrated Portuguese street artist VHILS sets the industrial tone of the café. This unique mural is carved by using drills, chisels and hammers, using the negative space to shape a mesmerizing collage.
Other design details that capture the dark essence of a city include: the hilarious burned out neon sign “Bakery Open”, the false ceiling with the silhouette of a skyline, the “chandelier” above the communal table constructed with water pipes, and the round cast iron legs of the tables that mimick manhole covers.







