
Cottage In Vilnius
COTTAGE IN VILNIUS
ARCHITECT IN CHARGE
Indre Sunklodiene
INTERIOR DESIGNER
Indre Sunklodiene
MANUFACTURERS
Alki, Medžio stilius
YEAR
2016
LOCATION
Vilnius, Lithuania
CATEGORY
Apartment Interiors
Text description provided by architect.
The clients of this cottage in Vilnius are a young couple, who worked in London while all project of their new home in Vilnius was in progress.
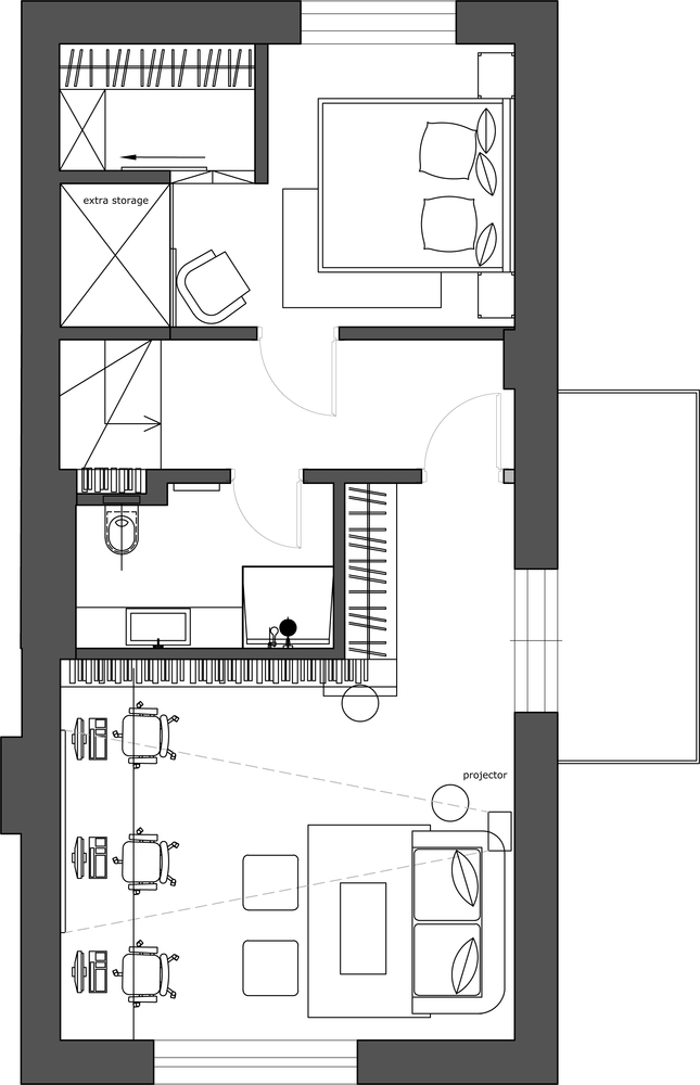
This task was to make a cozy apartment with 2 floors in cozy modern- Scandinavian style with an edge.
The main problem in 1 floor was an oblong space. The idea of a long TV cabinet combined with a soft bench for a dining table came like solving this problem with no extra space for a dining area. Huge metal shelf with a wooden cubes gives a depth for this living space.
The kitchen area is in the other back of a building in a narrow space. The white rhombus tiles poured out up to a ceiling on a black contrasted wall. Bright oak cabinets coming like a cozy warming material in a kitchen area.
The main tv wall in a living room in colored with a grey ombre effect and the opposite shelf and fireplace wall is left with old white colored bricks.
Upper ceiling part in a living room has a structured grey painted stucco remaining concrete while other walls and ceilings are painted white with black wooden surrounds that gives a contrast effect in colors and structures.
Small WC space has a space-saving doors that opens to both sides.
The materials are used in contrast again: birch plywood and black hexagonal tiles, with a white colored metal mesh details under the washbasin and as a door for a mashing machine space.
The narrow staircase has a mirror cabinet wall in the intermediate floor for a more optical space.
One wall is painted in white with a white geometric wall lamps while the other is painted in dark grey and coming to the second floor where the niche left in a building project was used for a book shelf with a leads.
The bedroom has a not usual plan and space- it is small but has a high ceiling.
There was a featured wall with an openwork shutter white panels and long curtains made to highlight the ceiling height.
The poured out chevron form tiles are used for a 2nd floor bathroom as the leading detail in this flat.
The owners of this cottage works with a IT book sphere so they needed a big comfortable work area- cabinet. So that room was adapted to their needs with 2 working spaces, comfortable sofa and metal mesh wall- shelf detail coming into mesh closet around the corner.


































