LE DAUPHIN
ARCHITECTS
Rem Koolhaas and Clement Blanchet
PHOTOGRAPHS
Clément Guillaume, Ruault
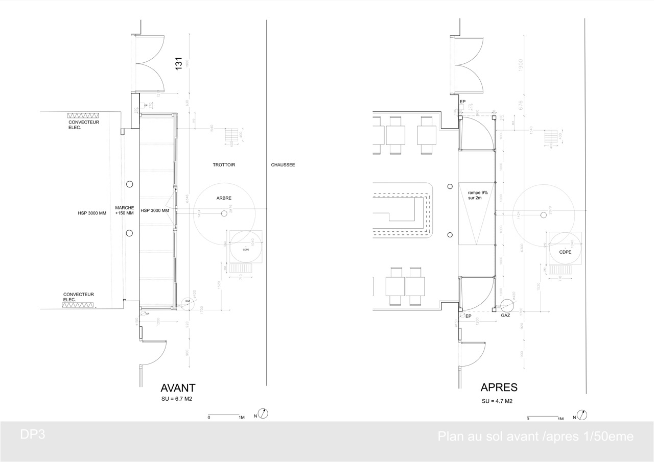
AREA
80.0 sqm
YEAR
2011
LOCATION
Paris, France
CATEGORY
Interiors Architecture
Text description provided by architect.
Chef Fre Peneau’s new restaurant, Le Dauphin is an 80 sqm ‘obsession in white’.
OMA‘s Rem Koolhaas and associate Clement Blanchet received the Fooding 2010 award for their interior design of the restaurant that opened December 2010.
Predominant materials of marble, mirrors and wood enlarge the space through reflection, and blur the boundary between interior and exterior.

































