
Brighton Implant Clinic
BRIGHTON IMPLANT CLINIC
ARCHITECTS
Pedra Silva Arquitectos
COORDINATOR
Luis Pedra Silva
TEAM
Nuno Baptista, Jette Fyhn, Hugo Ramos, André Góis
PHOTOGRAPHS
Joao Morgado
LOCATION
Brighton, England
CATEGORY
Clinic
Text description provided by architect.
In the world of medicine where leading edge technology and science are key factors in services provided to patients, the opportunity arose to design the premises for an advanced dentistry practice - the Brighton Implant Clinic.
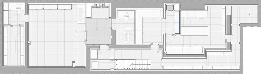
The site is a brick Victorian building in Brighton, United Kingdom and is made up of a basement and four floors above ground.
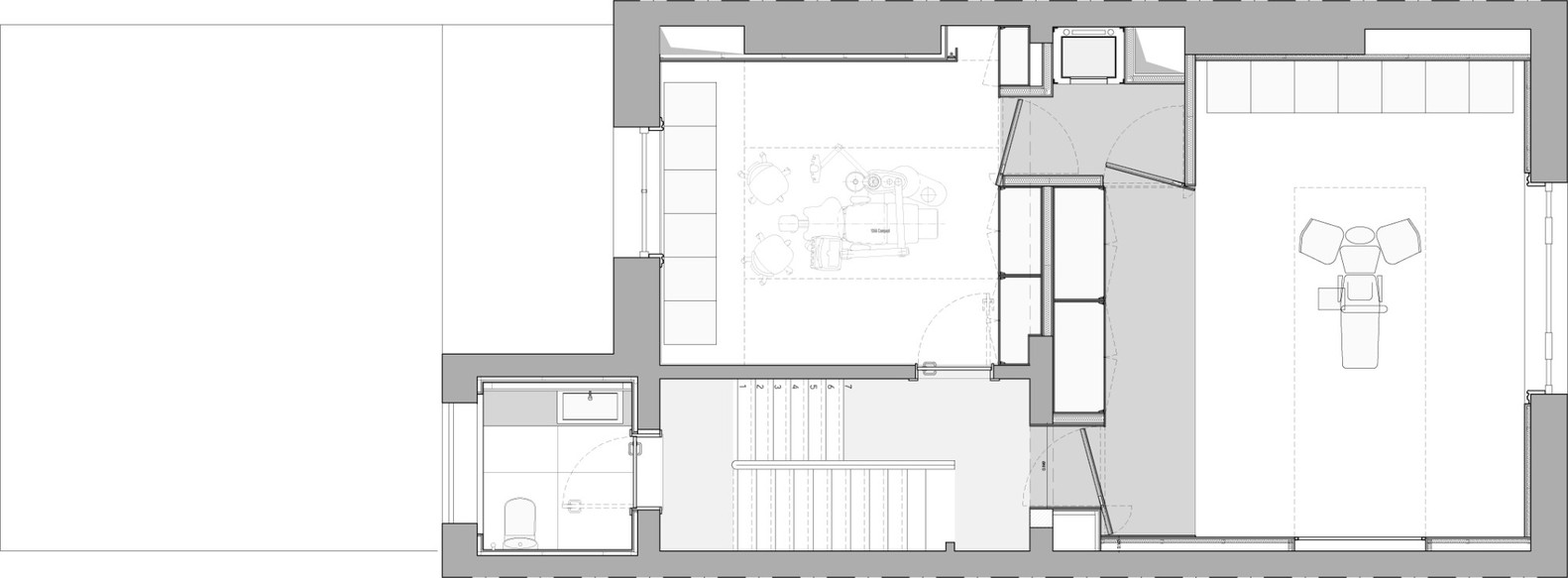
The practise is composed of a dental prosthetics lab where dentures and implants are fabricated on the same day as the patient is being treated, allowing the patient to leave the premises with a concluded treatment not having to return to the practice in the future.
The practice also has a state of the art CAT scan allowing three-dimensional imagery of the skull in order to assist surgeons in the placement of implants.
There is also of a sedation surgery, where full general anaesthesia can be provided for more complex procedures.
On the ground floor is the general reception and waiting area and on the upper floors are an additional four surgeries, administration area, staff room and patient recovery and relaxation lounge.
From an architectural perspective, the space was designed taking into account the philosophy of advanced dentistry.
We created a space that transmits confidence while moving away from references that associate the space to clinical atmospheres. While being discreet we also wanted the space to create memory in patients who visit the clinic.
The sculptural effect of the steel blades twisted at different angles providing movement and rhythm with the brickwork as a backdrop give character to the reception and visual impact to passers by.
Having gutted the whole interior of the building with exception to the structure, the design combined a contemporary space while still allowing for original features of the building to coexist.



































