
Medical Practice De Schuyter
MEDICAL PRACTICE DE SCHUYTER
ARCHITECTS
Joshua Florquin Architects
PHOTOGRAPHS
Matteo Rossi
AREA
120.0 m²
YEAR
2016
LOCATION
Maldegem, Belgium
CATEGORY
Medical Facilities, Interiors Architecture
Text description provided by architect.
This medical practice is founded by Dr. Hans de Schuyter and is based in Maldegem, Belgium. Hans commissioned Joshua Florquin Architects to design the planning and interior-design of the practice.
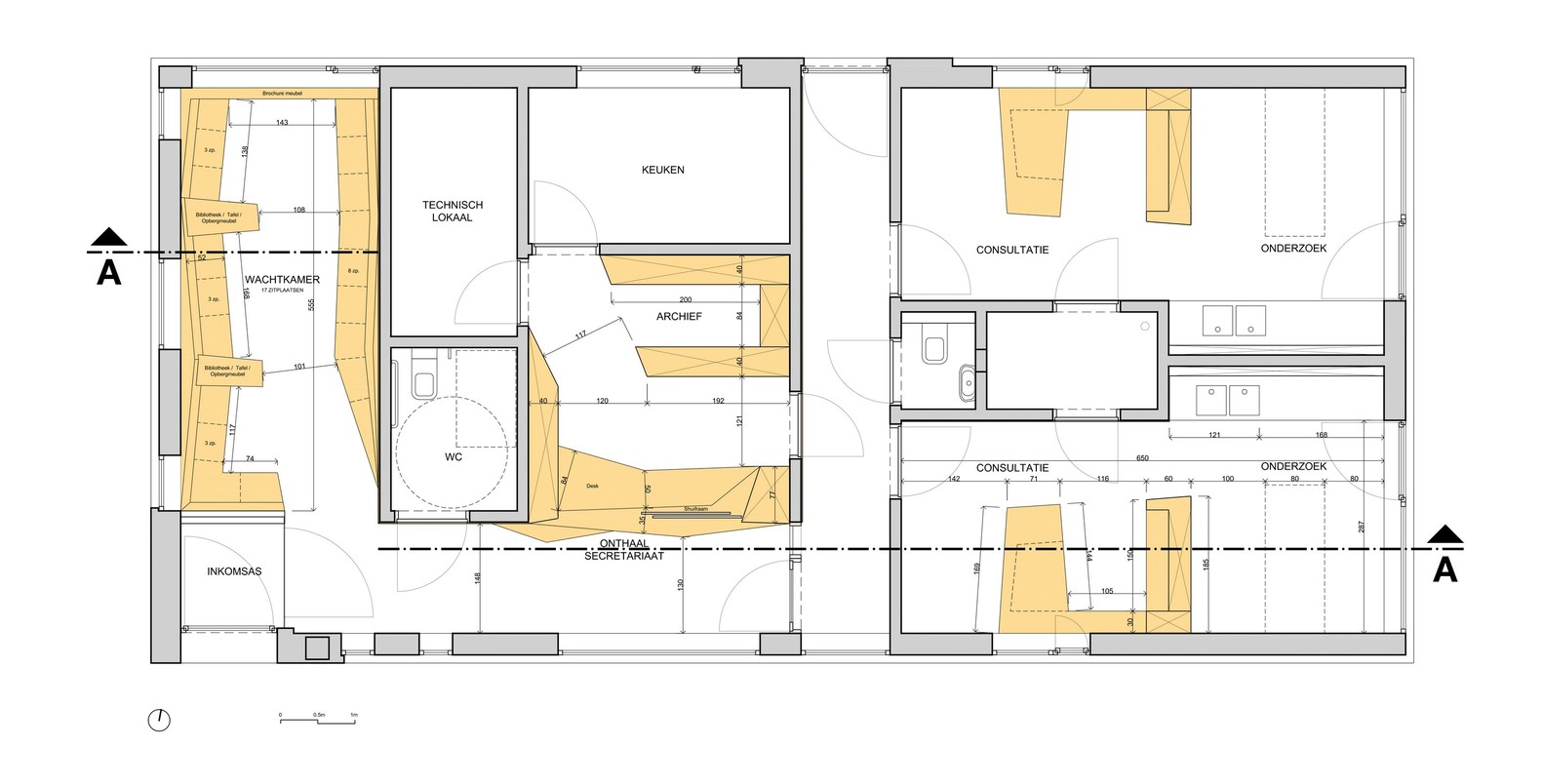
The program consists of inserting into an oblong shaped one floor building public and private amenities such as waiting area, reception with archive, a kitchen and two offices.
The concept and design of the practice has a strong functional and psychological approach that overlap each other.
Functional because of accessibility and technical regulations, that are inherent to the working environment of a medical practice, where circulation interconnects the public and private spaces.
Psychological because of the mental and physical state patients can find themselves in when visiting. Particular attention is given to light and materials that influence the state of mind in a positive way.
In the floor plan we distinguish a central placed rectangular threshold-volume. It holds mainly the reception but also archive, kitchen, lavatory and a technical area.
It separates the private working spaces from the public waiting area. This gives waiting patients and the doctors direct access to reception and lavatory without crossing each other.
The central rectangular volume has a tulip identifiable wood coating and gives a soothing bright atmosphere. Together with the function of the area it changes in shape throughout the practice.
In the waiting area a serpent like form emerges from the wooden wall and becomes a bench where patients can sit. The different benches are separated by armrest-libraries creating small waiting islands.
When a patient visits the practice, according to his mental and physical state, he can choose to sit with other patients or search privacy and sit alone in one of the islands.
The facing benches are not parallel but have a skewed zigzagged form in order to naturally avoid a direct eye-contact, if wished.
From the waiting area you can walk towards the reception where the wooden wall transforms itself into a front desk made out of three emerging intersecting volumes.
Each volume has a height and a function. The highest volume is the desk where documents can be laid or and handed over.
The middle height volume can be used to rest handbags on and finally a third lower volume in form of a niche, where children can take a small toy when leaving the doctor's office.
The concept and aesthetic language continues in the offices where custom furniture, also coated in tulip wood, divides the consultation area from the more private examination area.



























