Shyo Ryu Ken,Kyobashi
SHYO RYU KEN,KYOBASHI
YEAR
2012
LOCATION
Osaka, Japan
CATEGORY
Restaurant
Text description provided by architect.
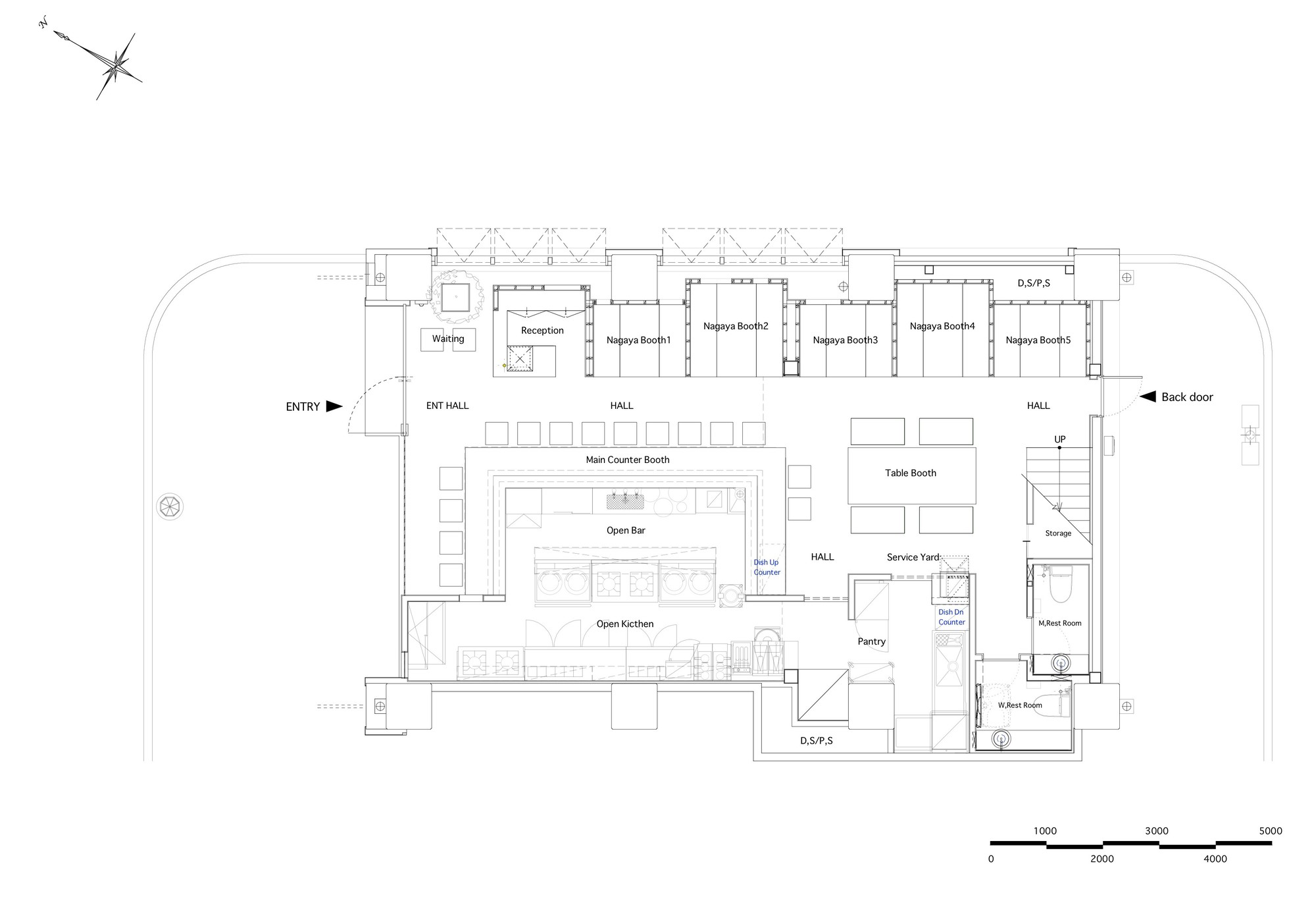
This is a new branch of the local famous Ramen shop, Shyo Ryu Ken at Kyobashi, Osaka. There are a business district and downtown area around this place.
The theme of this shop is to provide a gathering place for the local community.
That’s why its appearance is open to the sideway, not like traditional closed structure.
Inspired by Nagaya (a traditional Japanese tenement house) style, there are different shapes of triangle roofs inside the shop and each table under the roof is looks like a dining room of each customer.
Yet one side of the each cell is wide open to the center of the shop and it connects customer with friendly staffs, cooks in the kitchen and other customers.
Utilizing Japanese traditional (and reasonable) materials, I created the non-traditional simple-beauty structure.
There are some building codes on the under a railroad overpass constructions, therefore all the shops tend to look all the same.
I wanted to defy the stereotype and tried to pursuit the new-look at this limited environment.














