
Studio Boot
STUDIO BOOT
Hilberink Bosch Architecten, Piet Hein Eek
ARCHITECTS
Hilberink Bosch Architecten, Piet Hein Eek
PHOTOGRAPHS
Thomas Mayer
YEAR
2012
LOCATION
's-hertogenbosch, The Netherlands
CATEGORY
Offices Interiors
Text description provided by architect.
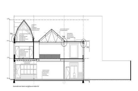
In the Van Tulden Street, in ‘s-Hertogenbosch, the Netherlands, in the shadow of the Eurocinema,stands the old derelict Garage Lathouwers.
The plan that we designedin 2009 for an extension with 2 movie theatres for the Eurocinemais never carried out and then thetimeworn property was sold to friends of ours.
Together with thema new plan was developed in which living and workingwere combined.
The building has a brick on the Van Tulden Street frontwith huge glass fronts and three entrances.
This masonryfront building is almost 21 meters wide, three stories high but onlyfive and half meters deep.
Against this stone front building a steel hall is placed with in the middle a large loft to.
Thesecond floor and crowned with a beautiful steel roof window. At the back of this open Hall is a wide garden.
However, the more publicpart of the design studio is placed behind the large glass doors: the discuss area and sales space for postersand other graphic objects
The middle section under theglass shade is workspace as well as a children's play room for children of our clients.
Adjacent to the garden is the kitchen set,separated from the hall by a cabinet byPiet Hein Eek.
On the second floor, around the vide,quiet work spots were created, a TV room and a guest room. The private bedroomsare more hidden in the stone front building. Due to these alterations and the way of livingand working by its residents the property is restored in its former glory.



























