Sereine
PROJECT TEAM
Memia Belkaid , Sami Aloulou, Dounia Hamdouch, Emilia Jansson
YEAR
2014
LOCATION
Loire, France
CATEGORY
Houses, Renovation
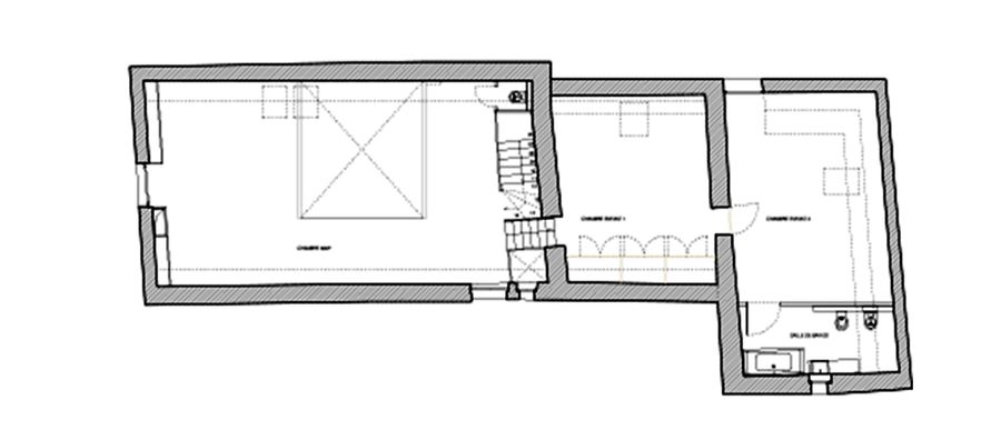
CONVERSION OF AN OLD FARMHOUSE INTO A SUMMER HOME
The project concept was to keep as much as possible of the old structure while adapting it to a new use.
The project concept was to keep as much as possible of the old structure while adapting it to a new use.
Discrete interventions on the internal fittings and use of rugged materials with natural appearance allows for a gentle preservation of the initial appearance of the building and its annex.

T +33 9 86255122
Septembre
91 Av. de la République, 75011 Paris, France













