
Lolly-Laputan Educational Restaurant
LOLLY-LAPUTAN EDUCATIONAL RESTAURANT
CLIENT
Fairyland premium kids cafe, PACEE Education
DESIGN TEAM
Mingshuai Li, Song :iu, Xueqin Jiang
DESIGN CONSULTANT
S5 Design Co., Ltd
LIGHT CONSULTANT
Wuxi Huancheng Light Electricity Limited Company
PROJECT ARCHITECT
Shengrui Pu
PHOTOGRAPHS
CreatAR Images
AREA
580.0 m2
YEAR
2019
LOCATION
Dalian, China
CATEGORY
Interior Design
Text description provided by architect.
The Fairyland Premium Kids Café designed by Wutopia Lab is officially open to the public in Dalian on May 28th, 2019.
The brand is mutually owned by PACEE Education and Fairyland so that there will be shared resources from PACEE that the client wishes kids can enjoy learning with entertainment. This cafe will be the first educational family restaurant in China.
DAUGHTER
One day morning my daughter Tangtang was drawing out her dreamy fairyland and I really want to make that dream come true, so more kids can come and join in this wonderful fairyland.
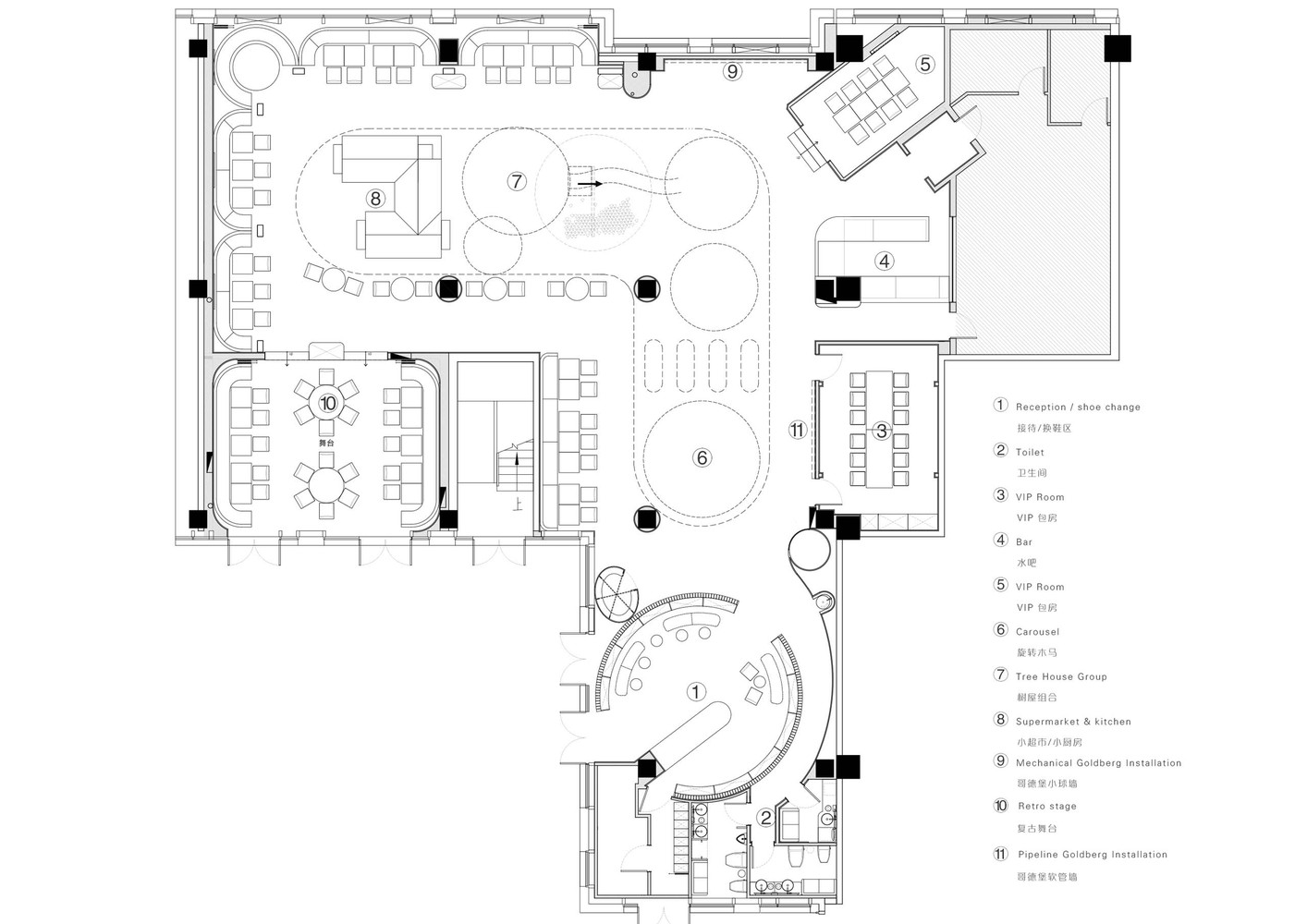
The exterior façade of the restaurant is made of aluminum panels with punctures of various sizes on it to create an effect of ripples woven together. Behind these ripples a world between reality and dreams is created for kids.
The front lobby is a circular space surrounded by forest of lights, which is composed of 1000 acrylic tubes that are able simulate the effect of sunlight shining through thick layers of leaves to provide a unique forest experience, with the reflection of the mirrored wall.
The central area is the Cloudy Town, the wonderland for kids. They can enjoy the Ocean of Clouds made of acrylic, with tree houses, slides, ball pit hidden in between. Surrounded the Cloudy Town will be the food area.
THE GOLDEN CASTLE
At the corner of the Cloudy Town is the Golden Castle, where there will be candle lights, fireplace, and shiny silverware for kids.
A white gallery, hidden away from the center, is a little space where kids can have some privacy with friends.
SHALL WE DESIGN ?
Kids, there will be no unwitnessed life because we’ll be here for you and every one of you will be the shiny star because we made a stage for you.
Red velvet curtain slowly revealed the gateway to old memories with neon lights, wood floor, beautiful wallpaper and crystal chandeliers. The future and the past are now interweaved, and the stage is ready for you to dance.
DAY DERAM: COTTON CANDY/ SPACE TRAVEL
Restroom becomes the day dream for kids. Cotton candies become girls’ favorite cloud lamp and mirror and boys can be astronauts traveling the space.





























