House Nieuwegracht
HOUSE NIEUWEGRACHT
Rocha Tombal Architects: Rocha Tombal Architects - Ana Rocha, Michel Tombal
ARCHITECTS
Rocha Tombal Architects: Rocha Tombal Architects - Ana Rocha, Michel Tombal
PHOTOGRAPHS
Christian Richters
YEAR
2012
AREA
400.0 m²
LOCATION
Utrecht, The Netherlands
CATEGORY
Houses
Text description provided by architect.
The commission consists in the transformation of a monumental building from the 17th century which until 1948 was used as a community centre from the “Nicolai-church”.
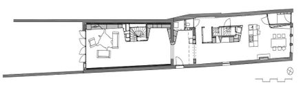
The monument was originally built with two parts: the front-house which received later an art-deco façade and, separated by a patio, the back-house and garden.
In the last decades several renovations took place which destroyed the clarity of these spaces. The situation in which we found it, with plenty of small divisions, allowed almost no contact between the front and back parts.
The living functions were concentrated on the extreme facades enjoying the natural light, while the areas in between were to dank to be used creating a central barrier.
By removing some of the inside walls and enlarging the doors towards the patio, the natural light was finally allowed to penetrate the centre of the house; in this way, and now enjoying the total space, new distribution alternatives were made possible.
Finally, in order to connect front and back in visual and physical ways, we proposed to design a continuous organic closet from front to back, where all facility’s inclusive staircases were introduced.



























