
Transformadora CIEL
TRANSFORMADORA CIEL
ARCHITECTS
AGENT, Rojkind Arquitectos
AREA
500.0 m²
LOCATION
Mexico City, Mexico
CATEGORY
Office Buildings, Offices Interiors
Text description provided by architect.
As part of an ongoing collaboration with The Coca-Cola Company, Rojkind Arquitectos to- gether with AGENT worked on the design of Foro Ciel, the physical space which will house the content for the Transformadora Ciel pro- grams.
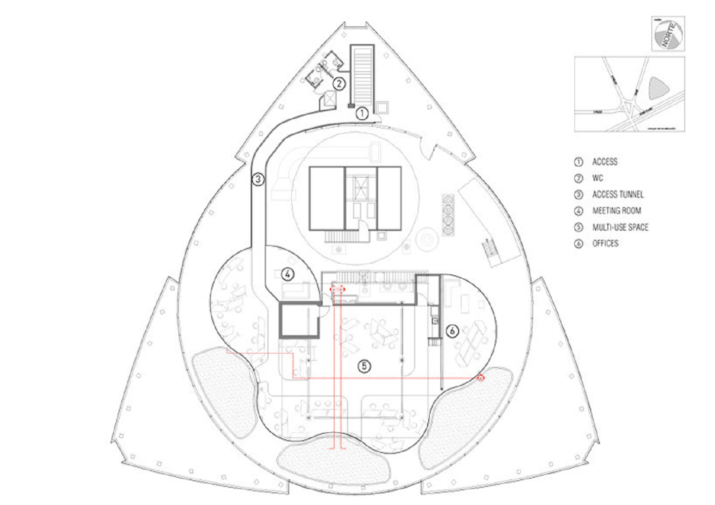
Foro Ciel emerges as the vivid example of a positive transformation as its main premise. Having an unused space as a starting point (flat roof and helipad) and transforming it into a productive co-working center, surrounded by green areas, the space not only achieves functionality but also revives a corner of the city.
The site, reinvented with recycled materials and a series of clean technologies, acquires a green roof whose vegetation does not require irriga- tion from the grid since a rain water collecting system was installed.
Regarding the environmental impact, we took into account various aspects during design and construction to minimize environmental damage and even have a positive impact.
For example, the aesthetic “industrial” project is intended to leave many elements (facilities, pipelines, etc.) So apparent to avoid using ex- tra materials finishes.
The customized furniture, includes inter- changeable modules that activate a flexible configuration interior where different groups are able to work in various topics and re-ar- range the layout as their work flow requires to.
The shapes within the space, as well the curved windows are reminiscent of Ciel’s “double droplep” logotype and a representation of the dynamic work space it holds.
NATURAL AND LED-BASED LIGHTING
-Water-based paint for structural elements -Powder coated paint for most furniture pieces.
-The majority of furniture pieces are locally produced. -Green roof including an orchad with rain water collection system.
-Use of recycled materials and re-utilization of existing structural elements from the helipad. -Use of low impact materials that contribute to LEED certification-Solar panels which contribute to most of the electrical requirements of the space. -Exposed installations to eliminate the need of unnecessary finishes.























