ARCHITECTS
Davidclovers
PHOTOGRAPHS
Almond Chu
AREA
4300.0 ft2
LOCATION
Clear Water Bay, Hong Kong
CATEGORY
Houses
Text description provided by architect.
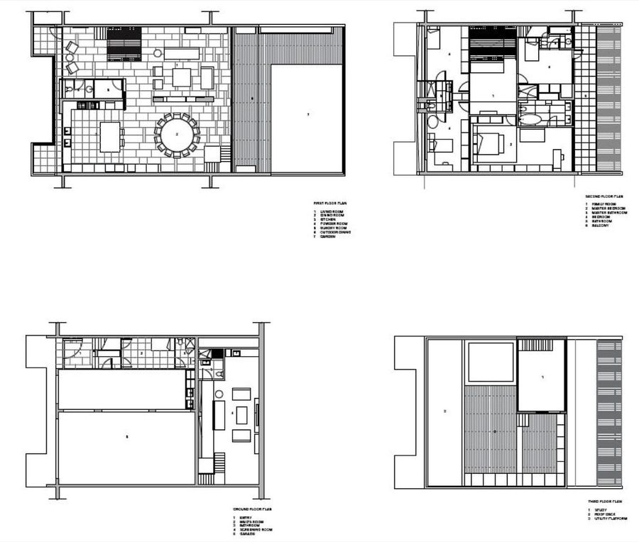
House DE is an “infill” townhouse, spectacularly sited on a hillside above Clearwater Bay, Hong Kong.


Combining two existing units into one, the design uses the volumes of three staircases to blend, burrow and interlock spaces vertically across four floors.
Each “interaction” is materially monolithic, using stone, wood and a series of delicate aluminum fins.
Defined by these fins, the texture and form of the lantern-volume subtly changes shape and depth, casting shadow and emitting light in different ways throughout the house.

Each stair-volume pries open the house vertically and horizontally, pulling in daylight and emitting artificial light.
Thickening the existing building enclosure and stretching it across the front and rear, the bedrooms and new master suite on the upper floors are protected from the elements, yet opens up to views of the natural surroundings.
Towards the South, the facade thickens and torques, providing shade for bedrooms and balconies; while on the North, the facade transforms into a garden trellis for an outdoor dining terrace.















