
Concept Store 00000
ARCHITECTS
Garis Miring Studio
LEAD ARCHITECTS
Garis Miring Studio
MANUFACTURERS
Acor, Asia Tile, Daikin, Roxy Glass, Seiv Paint, Toto
CONTRACTORS
Masarijaya
PHOTOGRAPHER
Fernando Gomulya
AREA
252 m²
YEAR
2018
LOCATION
Kuta, Indonesia
CATEGORY
Market
English description provided by the architects.
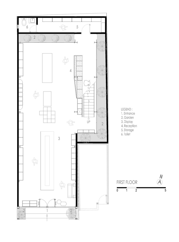
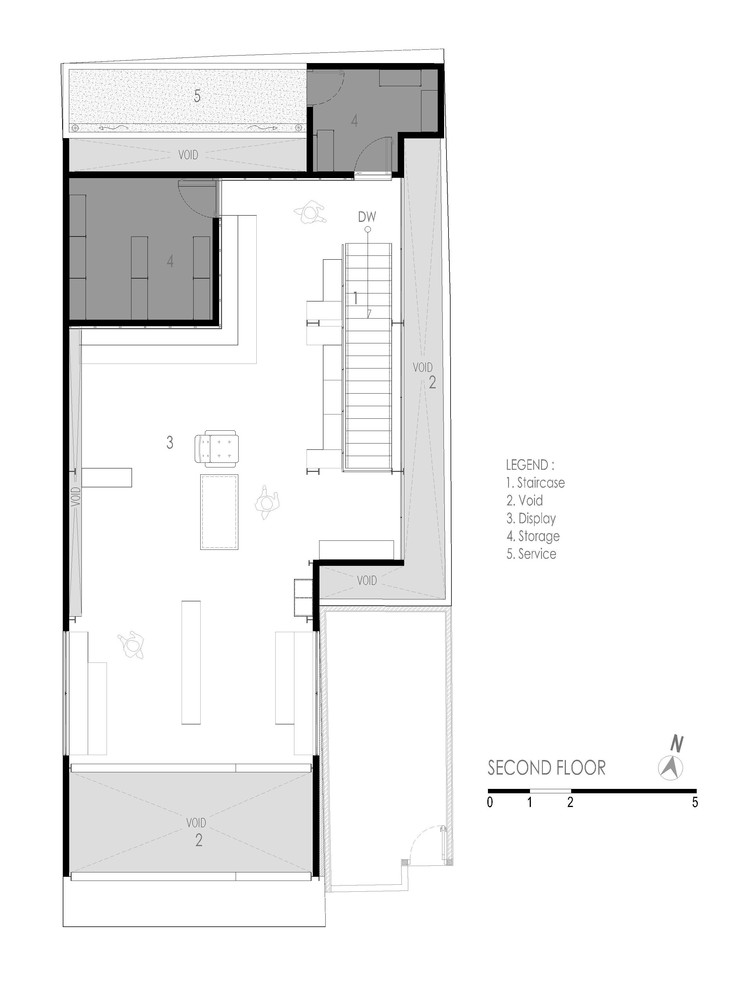
Located in shopping district in Seminyak-Bali, “Concept Store” is an example of using contrast to make the building stands out from the surrounding.
The conventional shaped pitched roof is playfully reconfigured, composing sense of scale and dimensions to create a unique modern facade.
As most industrial spaces that feature a neutral palette, letting bold architectural features, and dynamic textures take the stage, the two storey-store designed in white painted steel frame structure and glass as the main material combine with white painted bricks to give the industrial feel more clean, also to make the selling goods looks more attractive to the customer.
To add texture, terrazzo flooring was chosen. Combination between metal-timber furniture and plants give warm ambiance to the industrial style and give more ‘life’ to the store interior.
Adding a mirror on one side of the wall is also a way to make the store feels more spacious.
The glass facade and voids around the store were made to maximize natural light so the electricity usage for lighting could be minimized in the day time.
At night the glass facade with white steel frames reflects the light from inside to outside, makes the store easier to recognize.

























